- Wohneinheitenfläche
- Um 58 m²
- Inhalt
- Um 190 m³
- Baujahr
- Baujahr 1998
- Anzahl der Zimmer
- 2 Räume (1 Schlafzimmer)
Suchst du nach deinem ersten eigenen Zuhause oder nach einer zentralen Basis mit allem Komfort um die Ecke –
Dieses 2-zimmer-Apartment bietet genau den richtigen Ausgleich zwischen Komfort, Vitalität und Bequemlichkeit.
Von hier aus spaziert man zu Fuß zum Supermarkt, zum Lieblings-Café oder zum Bahnhof - ideal für Menschen, die Leben, Komfort und Gemütlichkeit schätzen.
Für Entspannung spazieren Sie in Richtung Schloss, das Wijchens Meer oder die grüne Umgebung um den Ort herum. Und mit der A50 und A73 um die Ecke sind Städte wie Nijmegen, Arnhem und Den Bosch sehr gut erreichbar.
Dieses 2-zimmer Apartment befindet sich auf dem 2. Stock, ist Teil eines gepflegten Komplexes und verfügt über eine eigene Dachkammer sowie ein südliches Terrassengelände.
Vorteile aufgereiht
- Ganzes Apartment mit Laminatboden
- Jalousie vor dem Schlafzimmer
- Neuer Remeha cv-Kessel (Eigentum, Dezember 2024)
- Am Haustür ein eigenes Terrassenauf dem Süden
- Großes gemeinsames Dachterrassengebiet (ca. 200 m²)
- Eign Lager auf dem ersten Stock
- Gemeinsame Fahrradablage, zugänglich über die Rückseite
- Wohnen direkt im Stadtzentrum von Wijchen
- In der Nähe von Läden, Restaurants und dem NS-Bahnhof.
Einteilung
Erdgeschoss
Gemeinsame Eingangstür mit Sprechanlage, Videophongerät und Briefkästen.
Erste Etage
Hier befindet sich dein eigener Speicher und das große gemeinsame Dachterrassen. Über die Treppe gelangst du von hier aus zur zweiten Etage.
Zweite Etage
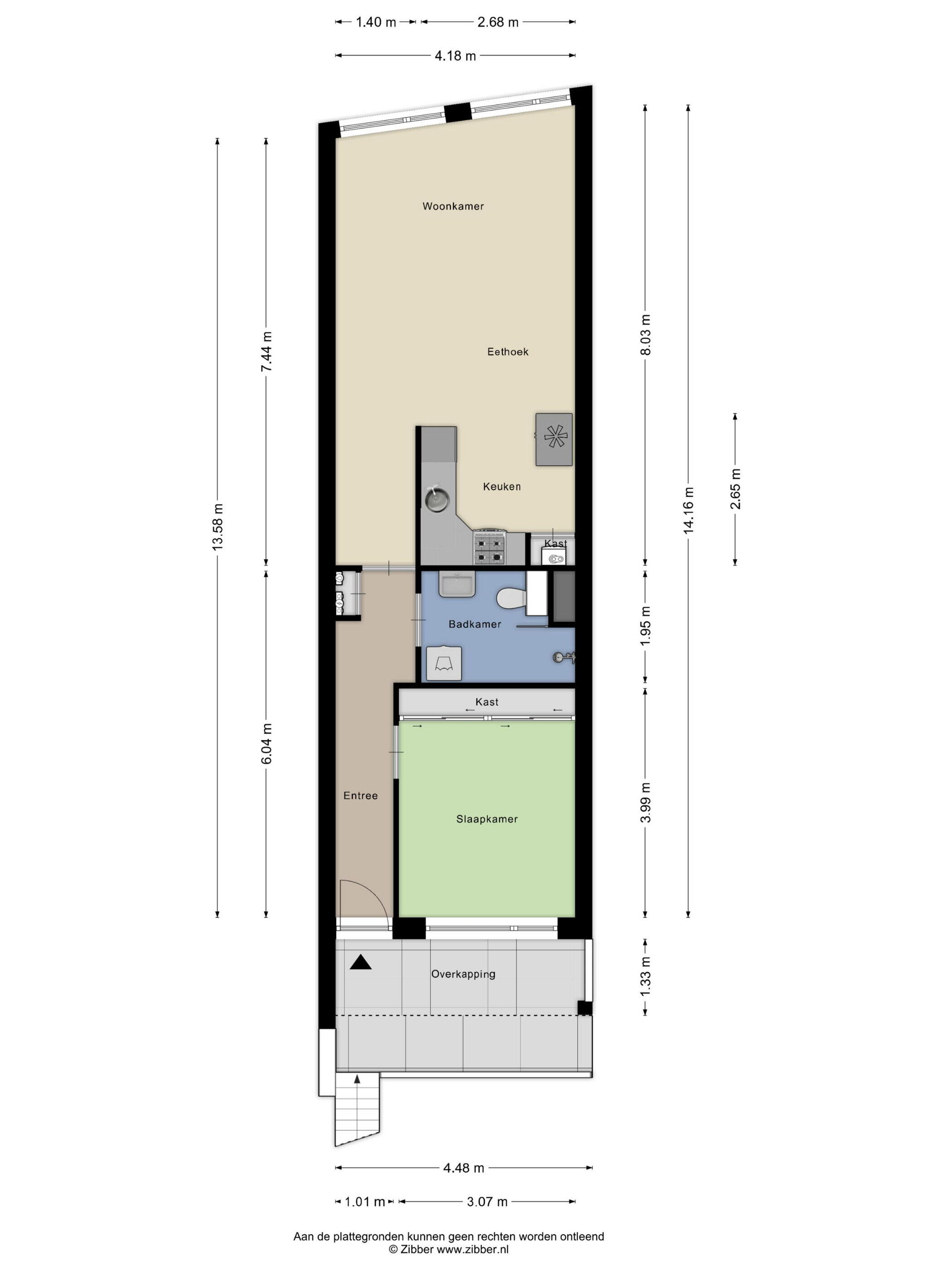
Direkt an der Eingangstür ein eigenes Terrassengebiet im Süden – eine schöne Stelle für einen Kaffee in der Morgensonne oder ein kleines Sitzecken draußen. Im Inneren gelangen Sie in den Flur mit dem Zählerkasten. Die Wohnzimmerfenster blicken auf die Geschäftsstraße hinaus und wirken hell und einladend. Die offene Küche ist mit eingebaute Geräte ausgestattet, darunter eine Gaskochplatte, Ofen, schmales Geschirrspülmaschinenmodell und Kühlschrank (defekt). Das Schlafzimmer verfügt über einen praktischen vierfach geteilten Schrankwand mit Spiegeltüren und grenzt an die Badezimmeranlage mit Dusche, Toilette, Waschtisch und Anschluss für eine Waschmaschine.
Allgemein:
- die Servicekosten für den VvE betragen 79,- Euro pro Monat
- die Selbstbelegungsklausel ist nicht anwendbar.
Am Haustür ein eigenes Terrassenauf dem Süden
Übertrag
- Verhandlungspreis
- 275.000,- EUR
- Status
- Verkauft
- Hinnehme
- Im Gespräch
- Beitrag des VvE
- 79 €/m
Bau
- Gegenstandsart
- Galerieapartment, Wohnung
- Bauart
- Existierende Bauwerke
- Baujahr
- 1998
- Dachart
- Gesammelter Dach
Oberfläche und Inhalt
- Wohneinheitenfläche
- 58 m²
- Inhalt
- 190 m³
- Gebäudebezogene Freifläche
- 6 m²
Einteilung
- Anzahl der Zimmer
- 2 Räume (1 Schlafzimmer)
- Anzahl der Badezimmer
- 1 Badezimmer
- Badezimmerausstattung
- Toilette, Dusche, Waschbeckenanrichte, Waschmaschinenanschluss
- Anzahl der Wohnetagen
- 1 Wohnetage
- Maßnahmen
- Rollläden, Fernsehkabel
Energie
- Energietag
- A
- Energietag-Register
- 21-10-2025
- Heizung
- Brennkessel
- Warmes Wasser
- Brennkessel
- Kessel
- Remeha Combikessel Gas gebraucht 2024 (Eigentum)
Außenraum
- Lage
- Im Stadtzentrum
- Balkon / Dachterras
- Arztpraxis
- Garten
- Kein Garten
Bergspace
- Maßnahmen
- Mit Elektrik ausgestattet
Garage
- Garagenart
- Keine Garage
Parkplatz
- Parkplatzart
- Offen parken
VvE Überprüfungsliste
- Periodeische Beitragsleistung
- Ja, 79 Euro pro Monat
Hypothekenbelastungen
Eigene Einlage:
Ersparnisse / Überwert
Zins:
Niedrigste 10-Jahres-Zinssatz
Niedrigste 10-Jahres-Zinssatz
2,85% - Centraal Beheer Groen... - NHG
3,08% - Centraal Beheer Groen... - 80%
Niedrigste 20-jährige Zinssatz
3,29% - Centraal Beheer Groen... - NHG
3,52% - Centraal Beheer Groen... - 80%
Niedrigste 30-jährige Zinssatz
3,41% - Centraal Beheer Groen... - NHG
3,74% - Centraal Beheer Groen... - 80%
Hypothek:
Bruttomonatslasten: € 0 p/m
Nettomonatskosten: € 0 p/m
Wie berechnen wir dies?
Der Zinssatz basiert auf dem niedrigsten 10-jährigen Festzins für einen einzelnen Hypothekenteil. Der angegebene Zinssatz (2.85% met NHG) wurde am 03-02-2026 überprüft. Diese Berechnung basiert auf einer Annuitätenhypothek, die vollständig zurückgezahlt wird, wobei die monatlichen Zahlungen während der gesamten Laufzeit gleich bleiben. Der tatsächliche Zinssatz und die monatlichen Nettokosten können je nach Ihrer persönlichen Situation und dem Hypothekengeber variieren. Wenden Sie sich für eine genaue Berechnung und Beratung an einen Finanzberater. Aus dieser Berechnung können keine Rechte abgeleitet werden; sie dient lediglich als Orientierung.
Dokumentation
Katasterkarte
Lebensumgebung
Planansichten PDF
Wertbescheinigung
Krankenkassenbeleg
Broschüre
Besuchen Sie unsere Website
Anmeldung move.nl
Besichtigung
Boden verlegen
Wertschätzung
Suchanfrage
Alles herunterladen
Sonnengrenzen betrachten
Auf der Karte
Bewohner von Wijchen
Zahlen für Postleitzahl-Region 6602
- Gesamtbevölkerungszahl
- 36260 Bewohner
- Männer
- 49%
- Frauen
- 51%
Bewohner von Wijchen
Zahlen für Postleitzahl-Region 6602
- bis 15 Jahre
- 12%
- 15 bis 25 Jahre
- 13%
- 25 bis 35 Jahre
- 19%
- 45 bis 65 Jahre
- 34%
- 65 und älter
- 21.7%
Haushalte von Wijchen
Zahlen für Postleitzahl-Region 6602
- Einpersonig ohne Kinder
- 27%
- Erwachsene ohne Kinder
- 32%
- Haushalte ohne Kinder
- 59%
Haushalte von Wijchen
Zahlen für Postleitzahl-Region 6602
- Haushalte mit einem Kind
- 20%
- Haushalte mit mehreren Kindern
- 21%
- Haushalte mit Kindern
- 41%
Wohnungen in Wijchen
Zahlen für Postleitzahl-Region 6602
- Wohnungen vor 1945
- 6%
- Wohnungen zwischen 1945 und 1965
- 23%
- Wohnungen zwischen 1965 und 1975
- 22%
- Wohnungen zwischen 1975 und 1985
- 22%
- Wohnungen zwischen 1985 und 1995
- 7%
Wohnungen in Wijchen
Zahlen für Postleitzahl-Region 6602
- Wohnungen zwischen 1995 und 2005
- 7%
- Wohnungen zwischen 2005 und 2015
- 5%
- Wohnungen nach 2015
- 6%
- Mietwohnungen
- 40%
- Eigentumswohnungen
- 60%
Sonstige Einzahlungen Wijchen
Zahlen für Postleitzahl-Region 6602
- Durchschnittliche WOZ-Wert
- € 309.000,-
- Personen unter 65 Jahren mit Hinterbliebenengeld
- 7%
Sonstige Einzahlungen Wijchen
Zahlen für Postleitzahl-Region 6602
- Adressen pro Quadratkilometer
- 1859
- Urbanität (Skala von 1 bis 5)
- 80%
Falls Sie Fragen haben oder eine Besichtigung planen möchten, können Sie das Formular rechts verwenden. Danach wird Ihnen kurzfristig jemand kontaktieren.
Kasteellaan 23
6602 DB, Wijchen
024 64 90100 binnendienst@driessenmakelaardij.nl www.driessenmakelaardij.nlKontakt aufnehmen
Seit 40 Jahren Ihr Immobilienmakler des Vertrauens
Enterprisener Immobilienmakler mit Ambitionen
Sie möchten ein Haus kaufen, verkaufen oder einschätzen lassen. Am liebsten kontaktieren Sie einen zuverlässigen Immobilienmakler in Ihrer Nähe. Aber wie finden Sie genau den Makler, der am besten zu Ihnen passt? Das Angebot ist so groß.
Driessen Maklerbüro macht Ihre Entscheidung erheblich einfacher. Wie? Zunächst sind wir seit vierzig Jahren ein Begriff in der Region. Mit Büros in Wijchen und Nijmegen kennen wir den lokalen Immobilienmarkt wie unsere Westentasche. Und nicht unwichtig: Der Immobilienmarkt kennt uns. 'Denn oft ist der erste Schritt eines Wohnungssuchers der Weg zu unserem Büro.' Dadurch bringen wir Anfrage und Angebot schnell zusammen und passen perfekt an die Wünsche unserer Kunden und potenziellen Kunden an. Darüber hinaus sind wir Mitglied bei der NVM, der größten Branchenorganisation im Maklergewerbe. Unsere Mitarbeiter sind daher bestens in der Lage, den gesamten Käufers- und Verkäuferprozess von Anfang bis Ende professionell zu begleiten.
Ihre Ambitionen sind unsere Ambitionen. Das bedeutet: Sie erwarten von uns, dass wir unser Bestes tun, um Ihnen die Qualität zu bieten, für die wir bereits seit so langer Zeit bekannt sind. Daran können Sie uns halten!
Neueste Bewertungen
-
Zesakkers 2015
Het contact met de makelaar verliep erg goed. Goed bereikbaar, korte lijntjes en deskundig. Erg tevreden
-
Aalsburg 2524
Fijne en goede communicatie.Goed advies en meedenken met de klant.Zo kan het dus ook 😀Bedankt Ivonne Jansen + binnendienst team
-
Marskramer 51
Prettig contact met de makelaar; zij hield ons tussentijds steeds op de hoogte na een bezichtiging; heel fijn!